One of the best ways to save money on a door is to have it machined to your opening, which means that it is made to match the specifics of your door. Typically, people don't order a machined door for one main reason, it can be very involved. It normally takes a specialist to call out all the details to correctly order a door. We've made it easy to make sense of it. In fact, email me and I'll send you a easy-to-fill form. Caution: Machined doors can be an ideal way to order but they do have limitations. Not all doors are available to be machined. Read more here.
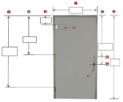
1. Measure width of door, edge to edge.
2. Measure height of door, edge to edge.
3. Measure from top of door to top of top hinge.
4. Measure from top of door to top of middle hinge.
5. Measure from top of door to top of bottom hinge.
6. Measure size of hinge.
7. Measure from top of door to middle of door handle. (Depending on lock you may have 2 points A &B. Typically interior doors have 1 point, just use A. Exterior doors may have two, both A & B)
8. Measure from edge of door to center of key hole.
Friday, March 20, 2009
How To Get A Door Machined To Your Opening
Subscribe to:
Post Comments (Atom)


This is interesting; ever since I do love to have my doors electronically lock since I almost forgot my keys inside. – Matthew | Window Planet
ReplyDeleteGreat posting !! very detailed, am I correct to assume that in Step 6 Mento on the interior must be AS taped to the Plywood buck/Grace layer. Seems like holding back Grace to the exterior a few inches and getting a good taping connection from Mento to the Plywood buck directly
ReplyDeleteSeattle window installation
Great information! A Dallas window company would help you get that taken care of very easily.
ReplyDeleteFor custom windows in Dallas check out http://www.windowcraft.biz/locations/
Windows and doors Dallas TX is a great option.
http://www.windowcraft.biz/homeowners/
Pretty good post. I just stumbled upon your blog and wanted to say that I have really enjoyed reading your blog posts.
ReplyDeleteDoor Replacement
Windows And Doors Las Vegas
Window Installation Service